




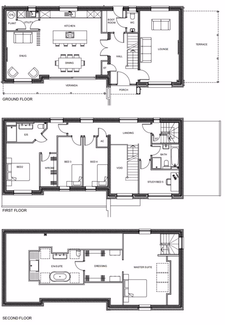
Development Land in Brook House Building Plot for Sale - £245,000
If you are looking for a potential self-build opportunity in a beautiful and historic area then we would strongly recommend taking a close look at this one.
Development Land in Brook House Building Plot for Sale - £245,000
Description
If you are looking for a potential self-build opportunity in a beautiful and historic area then we would strongly recommend taking a close look at this one.
Contact Agent
Smart Picks — Professionals Relevant to This Land
Based on this property's key features, here are the specialists you may want to consult as part of your due diligence: land agents, rural solicitors and planning consultants.

Land Agents
Essential for navigating the land market, finding buyers, and securing the best price.

Rural Solicitors
Significant investment (£245K+) requires legal expertise for conveyancing, title checks, and transaction security.

Planning Consultants
Planning restrictions or development potential requires specialist consultation.
Location
Brook House Building Plot